- Úvod
- >>
- PRÍDRŽNÉ ELEKTROMAGNETY, ELEKTRICKÉ ZÁMKY
- >>
- Elektrické zámky
- >>
- Elektrické zámky HARTTE
- >>
- Lišty ku elektrickým zámkom
- >>
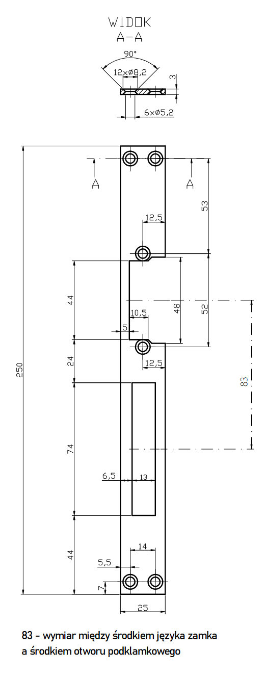
- H OK-P4 lišta dlhá
H OK-P4 lišta dlhá
Lišta ku elektrickým zámkom Hartte, rozmery: V250mm x Š25mm HL3mm, kompatibilná so sériami: ES1, S, XS, SHD, XSHD

